This photo of an unidentified stage show circa 1934 illustrates the intrinsic brilliance of the side bridge carbon arcs, with their tremendous penetrating power that could burn through all the other stage lights. Apparently a show about draperies, the contour curtain is mimicked in at least one scalloped border upstage of it.
Roxy, always prone to hyperbole, permanently exaggerated the seating capacity of the Hall from 5,945 to 6,200 and likewise his claim here that the 1927 Roxy's thirty spots produced 300,000 kilowatts-- 300 million watts-- may be off by a decimal place or two.
The magical and highly theatrical rays of the powerful front lights can be seen in this photo, which also shows the primary house lighting, the cove source invisible to the audience. 2800 150-watt lamps filtered through green, blue, red and amber rondels (there was no white house light circuit) fitted into Kliegl model 731 cove light strips were set into the eight coves, A through H, interspersed with perforations or grilles, unlit in this photo.
The ceiling coves represented only a portion of the huge complement of Music Hall house lights which included the four-color perforations, balcony soffits, 3rd Mezzanine urns, and the side orchestra aisles and choral stairs (below) each landing with its own four-color footlight.
According to an article in the Showmen's Trade Review of April 22, 1944, there were 7,184 light bulbs in the auditorium, not including the 3,416 Kliegl battery-powered program lights on the back of orchestra seats, these devices first introduced the year before at the nearby 3000-seat Earl Carroll Theatre.
To the Chief of Electrical Maintenance, a member of the stage electrics department, fell the daunting task of keeping those 10,000 house lights burning, not to mention the lamps in offices, dressing rooms, and marquee. The first chief was Nick Kronyak, succeeded in 1953 by Chris Rober, Sr., shown below re-lamping a shadow box on West 50th Street. His son would become the stage hydraulic engineer, also a member of the electrics department.
The house lights comprised a grand total of six-hundred and fourteen circuits on sixty-six dimmers, according to Lyman Brenneman's detailed 1999 Marquee magazine article on whose stage lighting statistics this article relies and which can be read here. Perhaps the most dramatic use of these fixtures occurred at the United Dawn Easter Services, where the house lights simulated the sunrise.
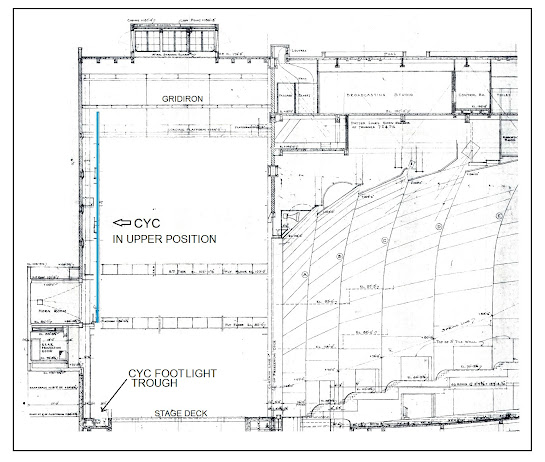
Besides the thirty-six carbon arc spots, onstage incandescent lighting units produced a conservative estimate of 900,000 watts of light, of which 430,000 were produced by the eight borderlights. Stage lighting positions were designated in order of rehearsal letter, starting with "A" for the footlights. In the plan below, the eight borderlights C-D-E-F-G-H-K and L can be seen, as well as the "A" and cyclorama footlights. The drawing is labeled "No. 10." the working name for the Music Hall when Rockefeller Center was known as "Metropolitan Square." HD view.
The three-hundred-and-sixty-lamp double-row motorized disappearing footlights were in twenty sections, furnished by Kliegl and motorized by Peter Clark. Custom designed for five instead of the customary four circuits, there were seventy-two 100-watt lamps for the green, red, amber and white circuits and seventy-two 150-watt lamps for the blue. Between the sections were permanent microphones and pin connectors for baby spots.
The disappearing mechanism was patented by Peter Clark and his chief engineer Howard Harding, and the traps were designed to sustain the enormous weight of the band car which passed over them in closed position, right.
For sidelighting of "the wood" was the B position, the Proscenium Floods, almost in a line with the footlights.
The proscenium floods were Kliegl 8" 2000-watt plano-convex spotlights equipped with reflectors and color changers. The B units, in a stack of eight, were positioned within the downstage track of the smoke pocket for the asbestos curtain as shown below. In the left photo, the first onstage borderlight, D Border, can also be seen. HD view.
It was possible to hang lights in the downstage track of the smoke pocket because the Hall's steel-framed fire curtain was in two overlapping sections, upper and lower, and the downstage track was reserved for the upper portion which never reached the stage deck.
Concealed at the top of the arch within the proscenium wall at the 5th floor level was C Proscenium Crossover bridge, in the position typically occupied by a valance borderlight. (C Bridge can also be seen in the section drawing, fifteen images back.) From C Bridge hung the C borderlight in sections, lamped 500 watts for amber, 750 watts each for green and red, and 1000 watts for blue. Interspersed between the sections were twenty 2K floods, Kliegl model 1176, twelve of them equipped with selsyn color changers. HD view.
Here the contour curtain can be seen lit bottom, sides, top, and front by the foots (A), the proscenium floods (B), C Border, and carbon arc front lights from the booth.
Attached to the inner proscenium wall were four small platforms for carbon arcs, two each side stacked at elevations of fifteen and twenty-six feet, accessible by straight iron ladder. The onstage carbon arcs were smaller versions of the Kliegl booth spots, model 1695, rated at only 100 amperes.
The electrical specification dated January 11, 1932 enumerates all the thirty-six Kliegl carbon arcs, the exception being that FR-10's replaced two of the Kliegl booth spots. HD view. To view the complete electrical specification, with index, click here.
Beneath the four portal carbon arc platforms on each side were the unlettered Portal Floods, six each side and also selsyn-equipped. HD view.
A close-up of the upper side bridge shows one of the horns connected to the all-important "God mic." Rigging for all the motorized linesets was on the OP side of the stage.
One carbon arc was positioned on each upper side bridge, and three on the lower, two of which can be seen in this 1949 cutaway drawing. HD view.
The lower bridge arcs can also be seen here, along with E Border, which like all the Music Hall electric pipes, trimmed at forty-two feet above the deck. All eight borderlights contained two lamps circuited as worklights and the E-F-G-H bridges also contained two "Upward worklights" pointed skywards.
E Border, as with F, G, and H, contained a borderlight and floods as shown below. The borders were on motorized linesets, and the spotlight battens within were also motorized and could be tilted from straight down to forty-five degrees. Arc lights were occasionally used on these bridges. HD view.
The gel frames or color filters for the borderlights and cyc foots were sections of glass fitted into a copper frame, similar to the Hub Electric model show here. The cyc foots and L Border were sized for 8" square frames; borderlights C, D, E, F, G and H, 12" frames; and cyc borderlight K a 15" frame.
The immense size of the double-row cyclorama borderlight K can be seen in this photo taken at the Kliegl shop. K was wired in five circuits, two of them blue, with forty-two 500-watt lamps each for green, red, amber, and daylight blue, and forty-two 750-watts for blue blue.
Looking upwards from left to right are Borders G and H (bridges), the double-row Border K, and L borderlight. L border was identical to E-F-G-H but without a light bridge. HD view.
According to Variety, "the Music Hall cyc was the largest ever built, 117 by 76 feet on a steel frame covered with composition pressed wood and canvas, and is raised by an electric hoisting machine to clear the rear projection booth."
In the down position, the cyc would drop into a 32" deep trough, obviating the need for a ground row, and motorized trap doors would open to receive it. Within the cyc trough were fourteen sections of footlights in four colors with seventy-two 200-watt lamps per circuit, lamped amber, red green and blue. HD view.
In the stage wings were six portable towers as shown below, each equipped with a 150 amp carbon arc spot, three selsyn color changer units, and various independents. Circuits were fed to the towers from the lower side bridge directly above, and originally provisions had been made for eight towers. Dimming controls on the switchboard for the side bridges were marked "First entrance" through "Fourth Entrance," and "First" through "Third" for the towers.
Facing three "Entrance" positions on the Prompt side, up top on the lower bridge are three carbon arcs, nine Kliegl 1176 color changer units and what appear to be Kliegl model 43 floods. Below, two of the three portable towers, similarly equipped. HD view.
AC stage floor pockets contained colored bullseyes designating each circuit color, illuminated via a microswitch when the lid was raised. The circuits were standard 20 amps, but in the six PS and OP pockets one of the four receptacles was rated for 60 amps, amber on PS and green on OP. A green running light on the OP loading dock column served as a reminder to electricians that OP was "green." Below, a Hub Electric version of the Music Hall Kliegl models.
In an August, 1933 Ed Sullivan column in the Daily News, a Music Hall lighting supervised by Roxy is described.
Sullivan continues:
There were even three 200 amp DC arc pockets on the 6th Avenue marquee roof for special events, according to the specification.
Fifty-five microphone pockets were spread liberally about the stage and pit, including six on the stage elevators, and the fifty-sixth for the 12th row "God mic." Added after the Music Hall opening, five self-rising footlights mics were installed, marked F on the drawing below. HD view. All audio equipment in the Music Hall was by RCA Victor. For a complete overview of the sound systems at the Music Hall, click here.
Between the footlight sections were eleven RCA Victor Photophone PB-31 ribbon microphones. HD view.
The PB-31 microphone was specifically invented for use in the Music Hall and precursor to the RCA 44, which would become the broadcast standard for decades.
At least eleven RCA microphones were dotted through the string section.
Communications were centralized at the stage manager's desk, shown below left, located between the Prompt side smoke pocket and the Peter Clark Control Panel. Beneath the clock are three rows of dressing room indicators which would illuminate when a given dressing room was occupied, and on the next row is a loudspeaker for the public address system and the buzzer panel. Directly above the desk is a loudspeaker for the "God mic" and a Dictograph intercom telephone serving VIP locations, familiarly known as "the bitch box." The stage manager is speaking into the house phone, known as PAX or private automatic exchange, with extensions everywhere except the dressing rooms. HD view.
Below, a directory of the PAX dial phones taken from the specification. Smaller separate telephone systems were provided for organ maintenance and for the electrician.
A close-up of the buzzer panel, the source of all cues. In her book "Thirty Thousand Kicks" Judith Love recalls watching her first show at the Music Hall and hearing the organ play. "Teddy Bears' Picnic boomed out so vibrantly, then at the signal of a soft buzz, the organ disappeared inside the wall again and a curtain closed behind it." Buzzer cues which originated from the booth dictated the orderly running of a picture, remembers projectionist Bob Endres. "At the end of a feature, we would give an eight minute warning to get the stage manager and board electrician in place, then a two minute buzz, and finally a 'go' buzz to bring the contour in."
A schedule of the buzzer panel above, including a key for audience chimes, taken from the specification. Select locations, such as the projection room, switchboard, conductor, organ consoles, all bridges and the portal spotlight platforms, could buzz the stage manager to give him cues.
An important component of the Music Hall communications systems was dressing room paging, likely introduced for the first time at the 1931 renovation of the Earl Carroll Theatre (1922), the Carroll stage manager's panel shown here.
The Music Hall paging system went out to seventy-one loudspeakers in dressing rooms and ancillary spaces, according to the specification, and a program feed was included as well, probably the first of its kind. All one-hundred and seven Music Hall clocks were slaved to a master Telechron Clock System, with dual motors for rapid reset, in flush, semi-flush, mantle, gauge, and floor standing models, ranging in size from five to twelve inches, a ten inch version shown here.
Click the link to continue to Part 4 -- The Switchboard.
To view the Master Index of all of Bob Foreman's photo-essays, click here.
%20RADIO%20CITY%20MUSIC%20HALL%20&%20BRIDGE%20LIGHTS.jpg)
%20RADIO%20CITY%20MUSIC%20HALL%20.jpg)
%20RADIO%20CITY%20MUSIC%20HALL.jpg)
%20RADIO%20CITY%20MUSIC%20HALL%20&%20CHORAL%20STAIRS.jpg)
%20RADIO%20CITY%20MUSIC%20HALL%20&%20PROGRAM%20LIGHT.jpg)
%20RADIO%20CITY%20MUSIC%20HALL%20&%20CHRIS%20ROBER%20SENIOR%20&%20CHIEF%20OF%20ELECTRICAL%20MAINTENANCE.jpg)
%20RADIO%20CITY%20MUSIC%20HALL%20&%20HOUSE%20LIGHTS.jpg)
%20RADIO%20CITY%20MUSIC%20HALL.jpg)
%20RADIO%20CITY%20MUSIC%20HALL%20&%20PLANS%20&%20DRAWINGS.jpg)
%20RADIO%20CITY%20MUSIC%20HALL.jpg)
%20RADIO%20CITY%20MUSIC%20HALL%20&%20FOOTLIGHTS.jpg)
%20RADIO%20CITY%20MUSIC%20HALL.jpg)
%20RADIO%20CITY%20MUSIC%20HALL%20&%20PROSCENIUM%20FLOODS.jpg)
%20RADIO%20CITY%20MUSIC%20HALL%20&%20FIRE%20CURTAIN.jpg)
%20RADIO%20CITY%20MUSIC%20HALL%20&%20PLANS%20&%20DRAWINGS.jpg)
%20RADIO%20CITY%20MUSIC%20HALL%20&%20SELSYNS.jpg)
%20RADIO%20CITY%20MUSIC%20HALL%20.jpg)
%20RADIO%20CITY%20MUSIC%20HALL%20&%20KLIEGL.jpg)
%20RADIO%20CITY%20MUSIC%20HALL%20&%20SPECIFICATION.jpg)
%20RADIO%20CITY%20MUSIC%20HALL%20&%20PORTAL%20FLOODS.jpg)
%20RADIO%20CITY%20MUSIC%20HALL%20&%20LIGHTS%20BRIDGES%20&%20E%20BORDER.jpg)
%20RADIO%20CITY%20MUSIC%20HALL%20&%20GOD%20MIC.jpg)
%20RADIO%20CITY%20MUSIC%20HALL.jpg)
%20RADIO%20CITY%20MUSIC%20HALL.jpg)
%20RADIO%20CITY%20MUSIC%20HALL%20&%20E%20BRODER%20&%20BORDERLIGHTS.jpg)
%20RADIO%20CITY%20MUSIC%20HALL%20&%20BORDERLIGHTS.jpg)
%20RADIO%20CITY%20MUSIC%20HALL%20&%20CYCLORAMA.jpg)
%20RADIO%20CITY%20MUSIC%20HALL%20&%20CYC%20FOOTLIGHTS.jpg)
%20RADIO%20CITY%20MUSIC%20HALL%20&%20LIGHT%20TOWERS.jpg)
%20RADIO%20CITY%20MUSIC%20HALL%20&%20SIDE%20BRIDGES%20&%20LIGHT%20TOWERS.jpg)
%20RADIO%20CITY%20MUSIC%20HALL%20&%20FLOOR%20POCKETS.jpg)
%20RADIO%20CITY%20MUSIC%20HALL%20&%20FLOOR%20POCKETS.jpg)
%20RADIO%20CITY%20MUSIC%20HALL%20&%20ROXY.jpg)
%20RADIO%20CITY%20MUSIC%20HALL%20&%20ROXY.jpg)
%20RADIO%20CITY%20MUSIC%20HALL%20.jpg)
%20RADIO%20CITY%20MUSIC%20HALL%20&%20AUDIO%20&%20DRAWINGS%20&%20PLANS.jpg)
%20RADIO%20CITY%20MUSIC%20HALL%20&%20FOOTLIGHTS.jpg)
%20RADIO%20CITY%20MUSIC%20HALL%20&%20AUDIO.jpg)
%20RADIO%20CITY%20MUSIC%20HALL.jpg)
%20RADIO%20CITY%20MUSIC%20HALL%20&%20PETER%20CLARK.jpg)
%20RADIO%20CITY%20MUSIC%20HALL%20&%20PAX%20TELEPHONE.jpg)
%20RADIO%20CITY%20MUSIC%20HALL%20&%20BUZZER.jpg)
%20RADIO%20CITY%20MUSIC%20HALL%20&%20BUZZER.jpg)
%20RADIO%20CITY%20MUSIC%20HALL.jpg)
%20RADIO%20CITY%20MUSIC%20HALL%20&%20CLOCK%20SYSTEM.jpg)